凸輪轉子泵維修技術要點分析
摘要:凸輪轉子泵是化纖生產中物料(漿料)榆送系統的重要設備,介紹其技術性能、常見故障分析和維修技術要點,為設備通過管道連續…
銷售熱線
021-56082699 56081570
電子郵箱
likaimp@163.com
摘要:凸輪轉子泵是化纖生產中物料(漿料)榆送系統的重要設備,介紹其技術性能、常見故障分析和維修技術要點,為設備通過管道連續…
摘要:在化工領域,考慮到一次投賚成本和維修簡便,很多裝置內輸送物料場合業主習慣選用離心泵的轉子泵型比較多,而轉子泵如螺桿…
隨著生活水平和健康意識的不斷提高,人們對于食品安全的要求也越來越高。在食品及藥品生產過程中越來越多地采用了全自動化控制…
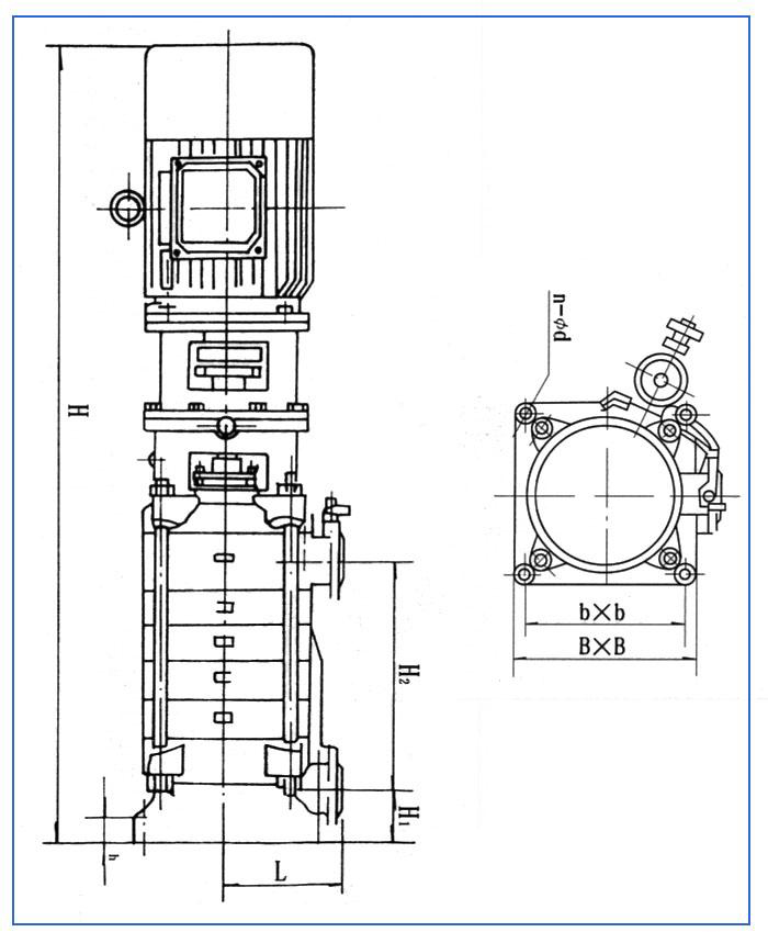
DL型立式多級離心泵供輸送不含固體顆粒的清水及物理化學性質性質類似于水的液體之用。主要用于高層建筑供水,也可應用于廠礦給排水、輸送液體的流量范圍為4.9~200m3/h,揚程范圍為22~239m,配套功率范圍為1.5~160KW,口徑范圍為φ40~φ150mm。
DL型立式多級離心泵是采用國家推薦使用的節能產品IS型泵的水力模型,為立式多級多節段式結構。螺桿把進水段、中段、出水段夾緊聯成一體。水泵每一級裝一個葉輪、一個導水葉。軸向力采用水力平衡法解決,殘余軸向力由球軸軸承承受,用油脂潤滑。軸封采用軟填料或機械密封。主要供吸送稀釋的、清潔的、不腐蝕的、不爆炸的清水及物理化學性質類似水的不含固體顆粒或纖維的液體。
本司產品全部采用計算機設計和優化處理,公司擁有雄厚的技術力量、豐富的生產經驗和完善的檢測手段,從而保證產品質量的穩定可靠。
1、水力模型良好:效率高,性能范圍廣。
2、運行可靠:取消了平衡鼓,其軸向力采用水力平衡,解決了平衡鼓易銹蝕、易咬死、易磨損的問題,保證了運行更加可靠。
3、更少的運行、維修費用:采用機械密封,耐磨損、無泄漏、使用壽命長,故障率低,具有更少的運行維修費用。
4、運行平穩,噪音低:采用低轉速電機,使泵運行平穩,噪音更低。
5、立式結構,占地面積小。
流量:4.2-504m3/h;
揚程:24-240m;
功率:1.5-450kw;
轉速:1480r/min;
口徑:φ40-φ250;
溫度范圍:0-+90℃;
工作壓力:≤2.4Mpa。

| 型 號 | 級 數 |
口徑 (mm) |
流量 (m3/h) |
揚程 (m) |
功率 (KW) |
轉速 (r/min) |
汽蝕余量 (m) |
|---|---|---|---|---|---|---|---|
| 40DL(DLR)6-12 | 2 | 40 | 6 | 24 | 1.5 | 1480 | 3.2 |
| 3 | 36 | 2.2 | |||||
| 4 | 48 | 3 | |||||
| 5 | 60 | 4 | |||||
| 6 | 72 | 4 | |||||
| 7 | 84 | 5.5 | |||||
| 8 | 96 | 5.5 | |||||
| 9 | 108 | 7.5 | |||||
| 10 | 120 | 7.5 | |||||
| 11 | 132 | 7.5 | |||||
| 12 | 144 | 11 | |||||
| 50DL(DLR)12.5-12.5 | 2 | 50 | 12.5 | 25 | 3 | 1480 | 2.2 |
| 3 | 3.75 | 3 | |||||
| 4 | 50 | 4 | |||||
| 5 | 62.5 | 5.5 | |||||
| 6 | 75 | 7.5 | |||||
| 7 | 87.5 | 7.5 | |||||
| 8 | 100 | 7.5 | |||||
| 9 | 112.5 | 11 | |||||
| 10 | 125 | 11 | |||||
| 65DL(DLR)30-15 | 2 | 65 | 30 | 30 | 5.5 | 1480 | 2.82 |
| 3 | 45 | 7.5 | |||||
| 4 | 60 | 11 | |||||
| 5 | 75 | 15 | |||||
| 6 | 90 | 15 | |||||
| 7 | 105 | 18.5 | |||||
| 8 | 120 | 22 | |||||
| 9 | 135 | 22 | |||||
| 10 | 150 | 30 | |||||
| 80DL(DLR)50-20 | 2 | 80 | 50 | 40 | 11 | 1480 | 2.2 |
| 3 | 60 | 15 | |||||
| 4 | 80 | 22 | |||||
| 5 | 100 | 30 | |||||
| 6 | 120 | 3. | |||||
| 7 | 140 | 37 | |||||
| 8 | 160 | 45 | |||||
| 9 | 180 | 45 | |||||
| 10 | 200 | 55 | |||||
| 100DL(DLR)72-20 | 2 | 100 | 72 | 40 | 15 | 1480 | 2.8 |
| 3 | 60 | 18.5 | |||||
| 4 | 80 | 30 | |||||
| 5 | 100 | 37 | |||||
| 6 | 120 | 37 | |||||
| 7 | 140 | 45 | |||||
| 8 | 160 | 55 | |||||
| 9 | 180 | 55 | |||||
| 10 | 200 | 75 | |||||
| 100DL(DLR)100-20 | 2 | 100 | 100 | 40 | 18.5 | 1480 | 2.8 |
| 3 | 60 | 30 | |||||
| 4 | 80
|
37 | |||||
| 5 | 100 | 45 | |||||
| 6 | 120 | 55 | |||||
| 7 | 140 | 75 | |||||
| 8 | 160 | 75 | |||||
| 9 | 180 | 90 | |||||
| 10 | 200 | 90 | |||||
| 150DL(DLR)150-20 | 2 | 150 | 150 | 40 | 30 | 1480 | 2.8 |
| 3 | 60 | 37 | |||||
| 4 | 80 | 45 | |||||
| 5 | 100 | 55 | |||||
| 6 | 120 | 75 | |||||
| 7 | 140 | 90 | |||||
| 8 | 160 | 90 | |||||
| 9 | 180 | 110 | |||||
| 10 | 200 | 132 | |||||
| 150DL(DLR)165-20 | 2 | 150 | 160 | 50 | 37 | 1480 | 3.5 |
| 3 | 75 | 55 | |||||
| 4 | 100 | 75 | |||||
| 5 | 125 | 90 | |||||
| 6 | 150 | 110 | |||||
| 7 | 175 | 132 | |||||
| 8 | 200 | 132 | |||||
| 9 | 225 | 160 | |||||
| 10 | 250 | 160 | |||||
| 150DL(DLR)200-20 | 2 | 150 | 200 | 40 | 37 | 1480 | 3.5 |
| 3 | 60 | 55 | |||||
| 4 | 80 | 73 | |||||
| 5 | 100 | 90 | |||||
| 6 | 120 | 110 | |||||
| 7 | 140 | 110 | |||||
| 8 | 160 | 132 | |||||
| 200DL(DLR)300-20 | 2 | 200 | 300 | 40 | 55 | 1480 | 5 |
| 3 | 60 | 75 | |||||
| 4 | 80 | 110 | |||||
| 5 | 100 | 132 | |||||
| 6 | 120 | 160 | |||||
| 7 | 140 | 160 | |||||
| 8 | 160 | 200 |
廣泛應用于高層建筑的消防、生活供水以及空調機組循環、冷卻水輸送。
結構說明 DL型多級泵由電機和泵兩部分組成,電機為丫型三相導步電機,泵和電機采用聯軸器連接,整體為剛性連接,使用吋無需校正泵由定子部分利轉子部分組成泵定子部分由進水段、中段、導葉、出水段、填料函體等零件組成為防止定子磨損,定子上裝有密封環、平衡等,磨損后可用備件更換轉子部分由軸、葉輪,平衡鼓等組成轉子下端為水潤滑軸承,上部為角接觸球軸承,泵的軸向力絕大部分由平衡鼓來承擔,其余小部分殘余軸向力由角接觸球軸承來承受進水段、中段和出水段的結臺面用紙墊通過拉緊達到密封.軸封采用填料或機械密封.用戶可根據需要選擇。泵旋轉方向從驅動端向下看為逆時針方向轉動。

![]() |
![]() |
| 編號 | 名稱 | 編號 | 名稱 | |
| 1 | 球閥 | 1 | 球閥 | |
| 2 | 撓性接頭 | 2 | 撓性接頭 | |
| 3 | 取壓直管 | 3 | 取壓直管 | |
| 4 | 真空壓力表 | 4 | 閘閥 | |
| 5 | 閘閥 | 5 | 彎管 | |
| 6 | 彎管 | 6 | 泵 | |
| 7 | 壓力表 | 7 | 聯接板 | |
| 8 | 水泥臺座 | 8 | JGD型隔振器 | |
| 9 | 水泥臺座 |



上一條: LG型高層建筑多級給水泵